Lanai House Residential Project:

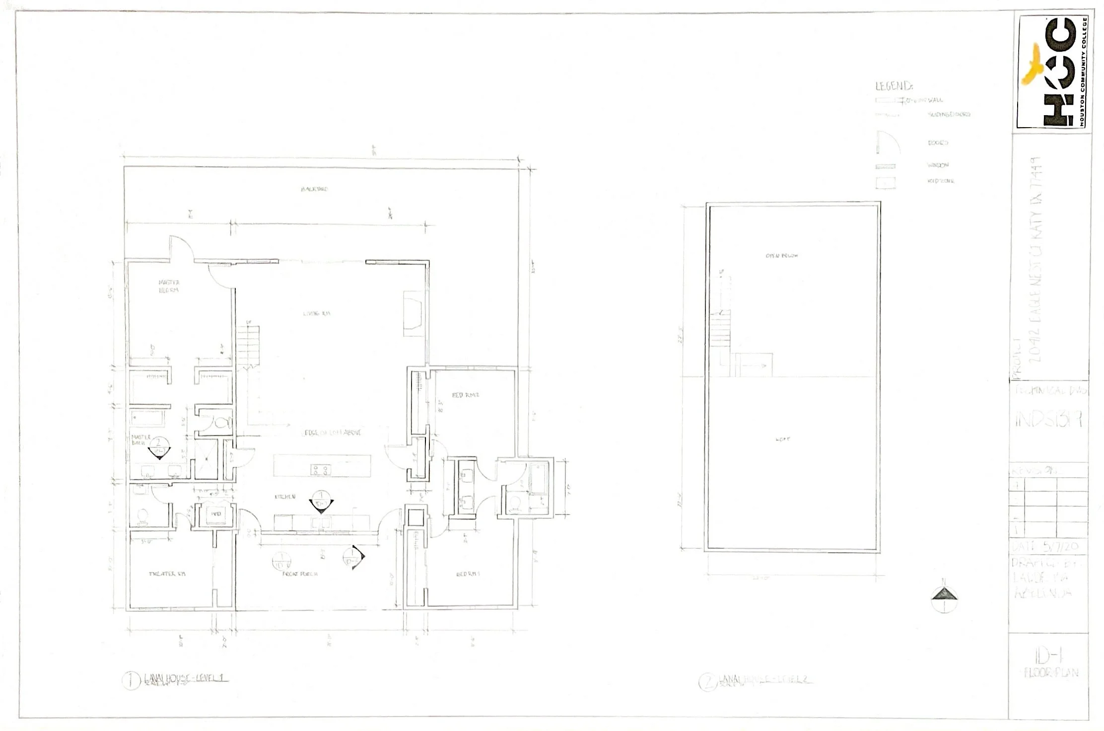
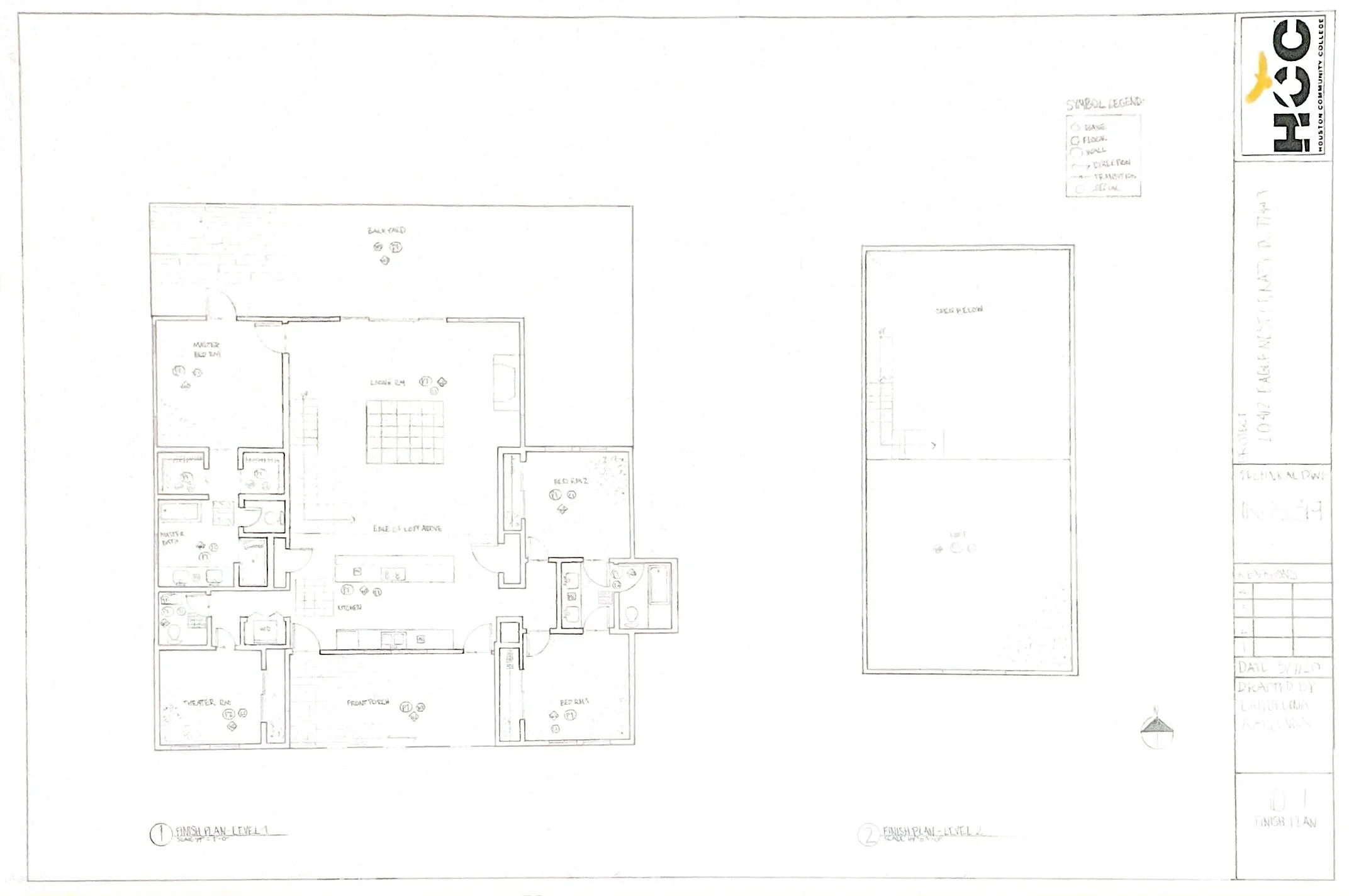
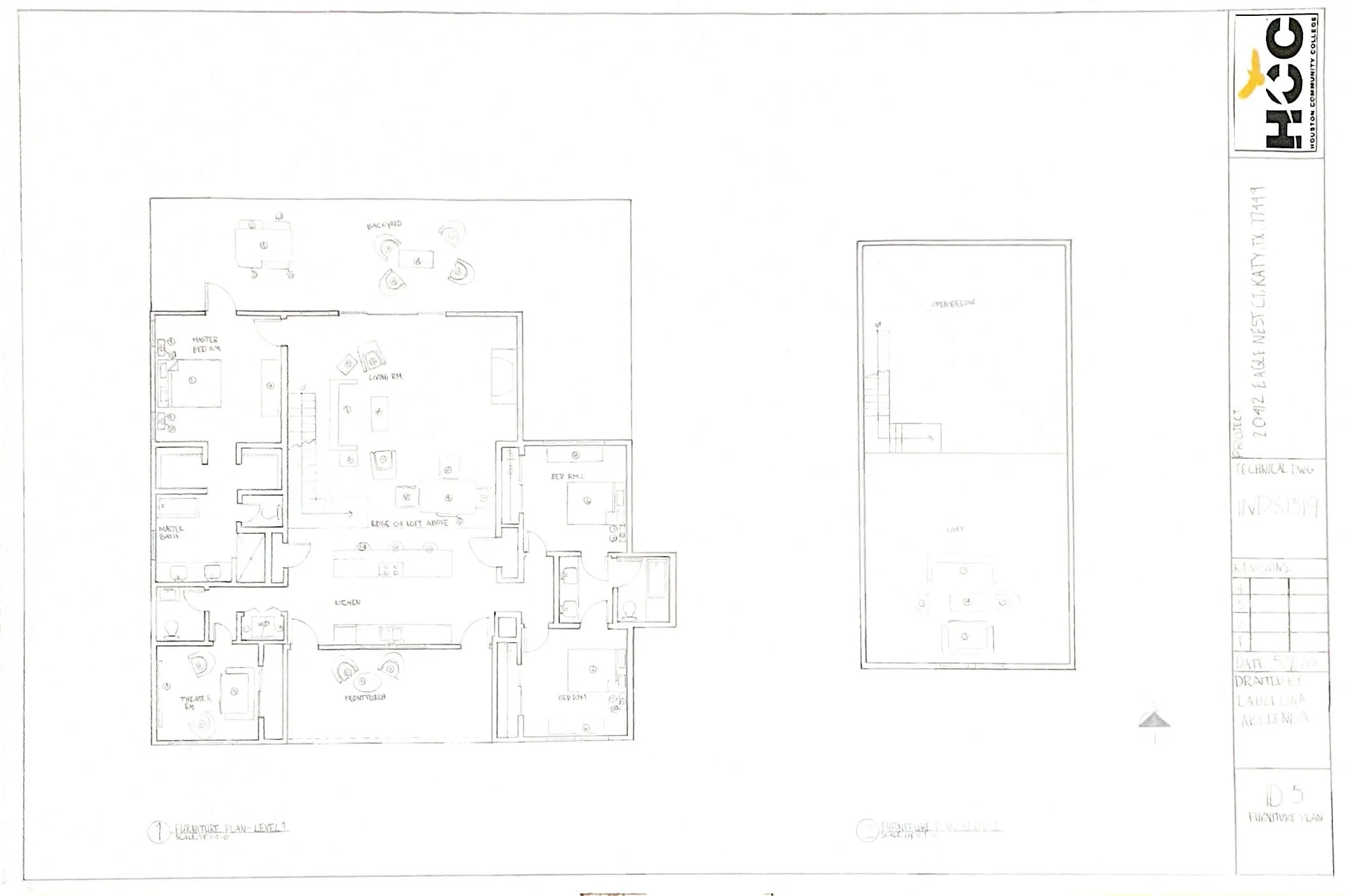
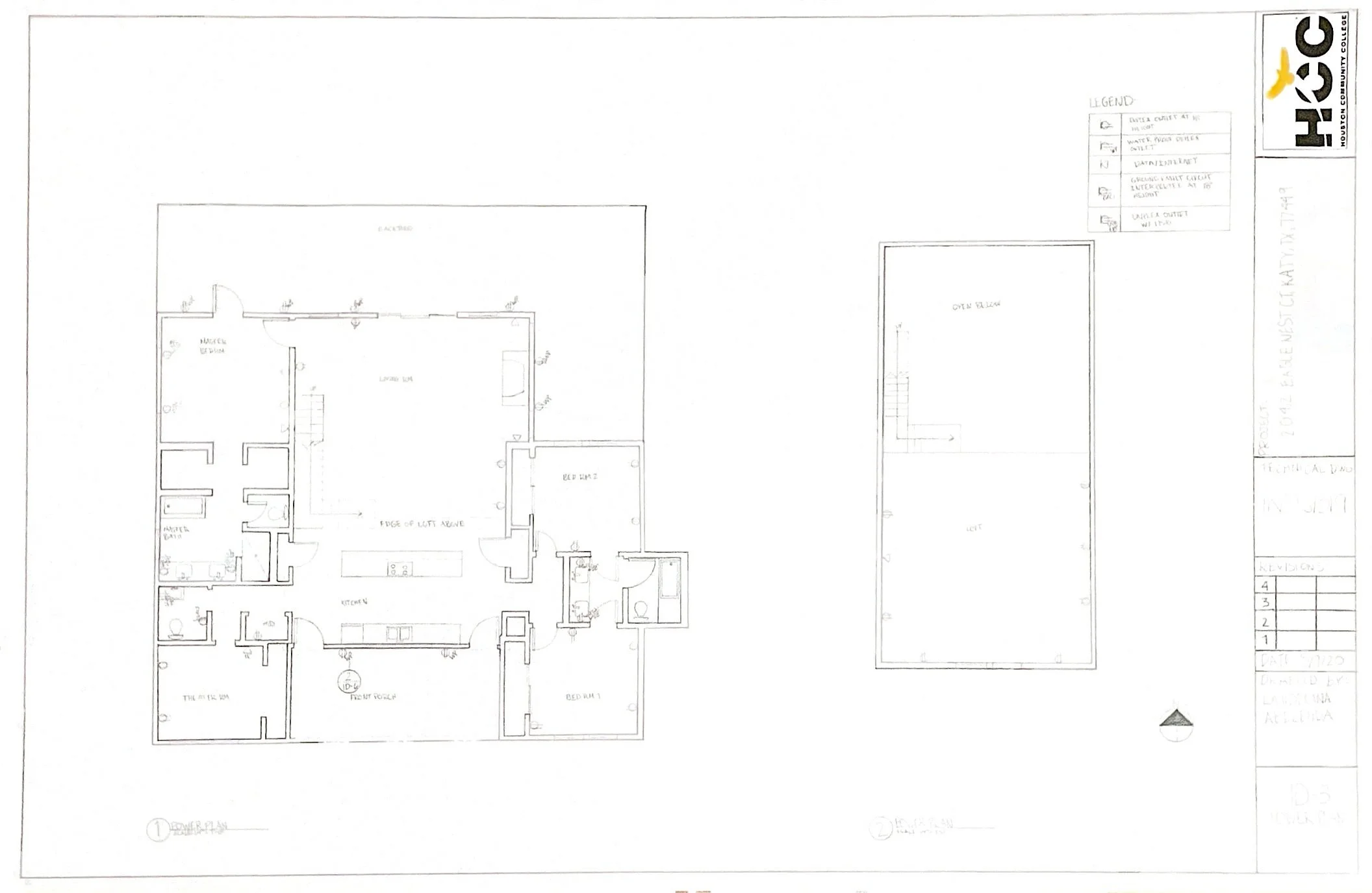
The Technical Drawing course is the study of learning about each of the construction documents and how to put together a set of construction documents. During the course we learned the skill of using the architecture scale, the knowledge of manually drawing construction documents, architectural symbols, and how to put together a set of construction documents. The Lanai House Residential Project we were given a base floor plan, that we needed to use the architecture scale to make a floor plan using a bigger scale to fit an 18x24 blueprint paper. Throughout the project we completed a cover page, floor plan, RCP plan, power plan, furniture plan, and an elevation; using the proper symbols, architecture lettering, template, legend, and information that is required in each of the construction documents.

Cover Page

Finish Plan

Floor Plan

Furniture Plan

RCP Plan

Elevation Plan

Power Plan